Share:
Description
- Lift access
- Jewellery Quarter
- Nearby transport links
- Allocated secure parking
- Two double bedrooms
- Private balcony with open outlook
- Concierge service
Maguire Jackson are pleased to offer for sale this well presented two-bedroom property in the ever popular Heritage Court development in the Jewellery Quarter. Located close to all amenities, shops, bars and restaurants. The proeprty is being sold with no onward chain and has allocated parking.
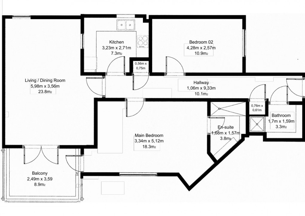
This well presented apartment features a bright and spacious open-plan living and dining area, complete with a fully fitted contemporary kitchen, perfect for modern living. There are two generously sized double bedrooms one of which includes an en-suite shower room. The second bedroom offers excellent versatility, ideal as a guest room or a home office. The master bedroom stands out with its impressive size, excellent natural light, and ample built-in storage. Location The Herritage Court building occupies a prominent location in the city's Jewellery Quarter, a new and thriving residential neighbourhood for Birmingham, only minutes' walk from the city centre. Located in the conservation area, The property enjoys all the benefits of a city location - less than a 15-minute walk to Birmingham's Central Business District and under 0.3 miles to the JQ station. Tenure - Leasehold Length of lease - 102 years remaining. Ground Rent - £100 per annum. Service charge - £5,000 per annum. Local authority - Birmingham City Council Council tax band - E EPC - BFloorplan
EPC
To discuss this property call our Birmingham branch:
Market your property
with Maguire Jackson
Book a market appraisal for your property today. Our virtual options are still available if you prefer.
